アーバン・テラス販売情報

それぞれの土地の特性を活かし、資産価値を高める参考プランを用意しました。
建築基準法の制限や住宅のボリュームをイメージする事ができます。
アーバン・テラスベーシックのモデルハウスが見学できます。
ぜひ一度、空間の仕上げりを体感ください。


アーバン・テラスベーシック
以下の物件も順次表示していきます。




お気軽にお問合せください。


アーバン・テラス・平尾 B号地外観イメージパース

アーバン・テラス・平尾 B号地リビングのイメージパース

中央区平尾5丁目(B号地)

【中央区平尾5丁目 B号地】
アーバン・テラス平尾 B号地 2階建てプラン例
建物価格7,500万円 建物面積 159.14㎡
マキイ山荘通り店から少し北側に上がった風致地区内に位置するアーバン・テラス平尾B、木々に囲まれた都心のリゾートが完成します。
1階では寝室の東側の掃き出しサッシを出ると屋根のある木々に囲まれたデッキに出る事が出来ます。2つの6.5帖の洋室からは南西に作ったこれも木々に囲まれたタイル貼りのテラスに出る事ができます。
32.5帖の2階リビングには見晴らしを重視して少し斜めに構えたフルオープン引戸の備えて、ベランダと繋げがっています。ベランダではテーブルにバイオエタノール暖炉を埋め込みました。
福岡市街の夜景をバックに暖炉の炎を楽しみながら食事をしたりと、豊かな暮らしがイメージできますね。
リビングの吹抜けの天井は高い所で5M程もあり空に抜ける眺望も合わせて開放感いっぱいです。
A号地では注文住宅が進行中ですので、
そこも踏まえて近隣全体の環境に対応した計画ができました。
パースに対応したプラン図も準備しました。
興味のある方はお問合せ下さい。

建築条件付き土地、販売中です。
地下鉄七隈線「桜坂」徒歩6分
ハーザードマップ対象外

土地価格 7,900万円 137.47㎡

【アーバン・テラス桜坂 2階建て設計プラン】

【中央区桜坂3丁目】
アーバン・テラス・桜坂 2階建てプラン例
建物価格7,500万円 建物面積 156.38㎡(ロフト12帖は含みません)
城南線桜坂の通りにある『クラシオン』前から動物園方向に入る道を進むと、南福寺などある桜坂緑地を南東に望むアーバン・テラス桜坂があります。
現地に足場を設置して、周りの建物を観察して2階リビングで、それも一般的な住宅より1m床面を高くする事で、南東の緑地をゆったりと楽しめる事がわかり、30帖オーバーのL.DK.をメインにプランを進めています。
1階に4m柱を使って2階床高さを上げた事で車庫上に9帖弱のロフト収納を作ったり子供室の物入上をベッドスぺースにしたり。
玄関ホールや主寝室の天井高くして抜け感のある、開放的な住まいになりました。
L.D.K.も最高高さ4m程の緑と空に視線がのびる気持の良い暮らしが実現できそうです。
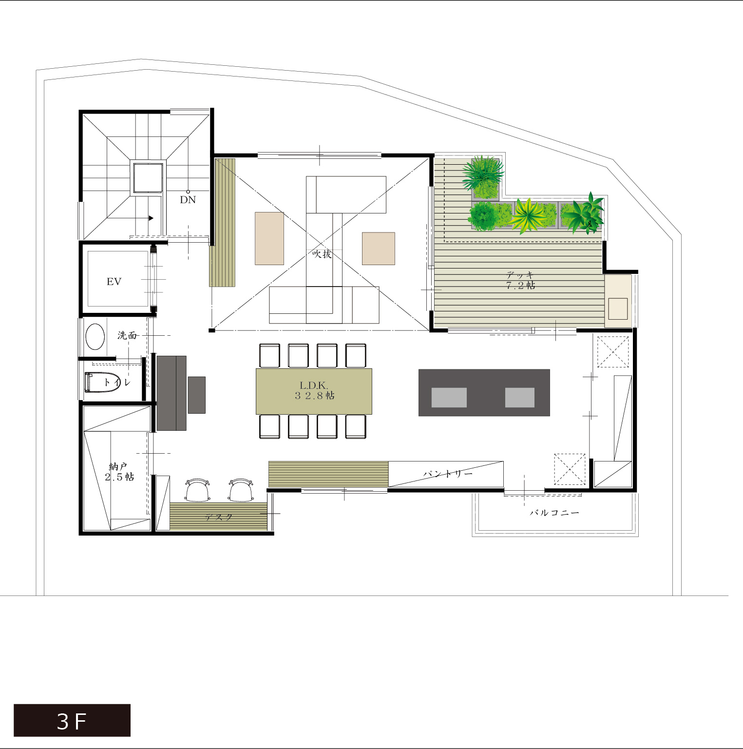
【アーバン・テラス桜坂 3階建て設計プラン】



アーバン・テラス・桜坂 3階建てプラン例
建物価格11,000万円 建物面積 231.23㎡
3階までリビングを見上げると、回りから飛び抜けて、南東にある桜坂緑地を独り占めできます。
十分な収納を備えた、32帖オーバーのL.D.K.へ広々エレベーターで上がると、天空の別邸のようです。
1階には3台の駐車スペースを準備しました。
オーバースライダーのビルトイン車庫は床をタイルで仕上げ、同じタイル仕上げの玄関・ホビールームと回遊動線で繋がります。
ギャラリーのようなこの空間も、未来の暮らしを豊かにしてくれそうです。
プライべートスペースは2階にゆったりとまとめました。
問合せ方法
【LINEからのお問合せ】
LINEアイコンをクリックし、友だち追加の上
メッセージを送信いただくと来場予約できます。
※LINEアプリのインストールが必要です。
【ホームページからのお問合せ】
お問合せの『お問合せ内容』の所に
『物件名』(例:アーバン・テラス・桜坂)をご入力ください。
【電話でのお問合わせ】
092-551-5481
(平日9:00~18:00)
080-4284-5481
(土・日・祝祭日・営業時間外も受け付けます)
Views: 13729

